REQUEST A TOUR If you would like to see this home without being there in person, select the "Virtual Tour" option and your agent will contact you to discuss available opportunities.
In-PersonVirtual Tour

$ 1,700,000
Est. payment | /mo
5 Baths
4,500 SqFt
$ 1,700,000
Est. payment | /mo
5 Baths
4,500 SqFt
Key Details
Property Type Multi-Family
Sub Type Multi-Family
Listing Status Active
Purchase Type For Sale
Square Footage 4,500 sqft
Price per Sqft $377
MLS Listing ID 499714
Style Colonial
Full Baths 2
Year Built 2025
Property Sub-Type Multi-Family
Property Description
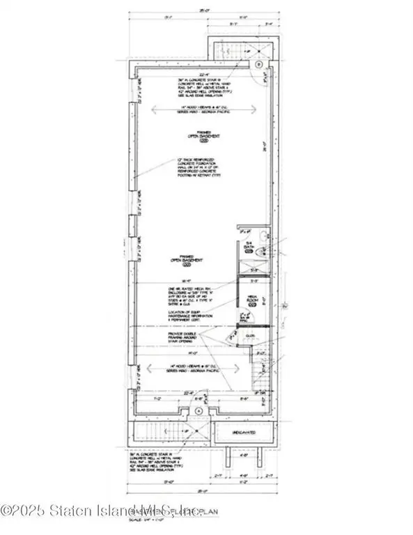
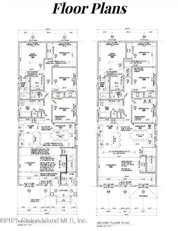
SET ON A GENEROUS 40 X 100 LOT, THIS DISTINGUISHED TO BE BUILT TWO FAMILY RESIDENCE BOASTS OVER 3,500 SQUARE FEET OF REFINED LIVING SPACE. BUILDING DIMENSIONS A UNIQUE 25 X 60 ALLOWING 4 GENEROUS BEDROOMS PER FLOOR. THE SUNLIT OPEN FLOOR PLAN INCLUDES CUSTOM KITCHENS WITH CENTER ISLANDS, HARDWOOD FLOORING, CROWN MOLDING, ANDERSEN WINDOWS. A PRIVATE LAUNDRY AREA AND A SERENE PRIMARY BEDROOM WITH BATH. A FINISHED BASEMENT, ONE CAR GARAGE. PRIVATE ENTRANCES AS WELL AS MODERN HEATING AND CENTRAL AIR CONDITIONING ELEVATE BOTH COMFORT AND EFFICIENCY AND CONVENIENCE.
Location
State NY
County Staten Island
Area Dongan Hills-Above Hylan
Zoning R3X
Rooms
Basement Finished, Full, Separate Entrance
Interior
Hot Water Electric
Heating Electric
Flooring Hardwood, Tile
Heat Source Electric
Exterior
Exterior Feature Stucco, Vinyl Siding
Amenities Available NONE
Roof Type Pitched,Shingle
Handicap Access No
Building
Story 2
Foundation Poured Concrete
Others
Energy Description Electric
Financing Bank Mortgage,Cash
Listed by Robert Defalco Realty
Nearby Locations
GET MORE INFORMATION

DiTommaso Real Estate
Broker






